4933 - Correggio
- € 289.000,00
- In vendita
RESIDENZIALE "IL CORREGGIO" ULTIMI 3 APPARTAMENTI DISPONIBILI
ZONA FATIMA - 8 unità abitative!!
IMMOBILI COSEGNATI A GIUGNO 2026
NUOVO in classe A4.
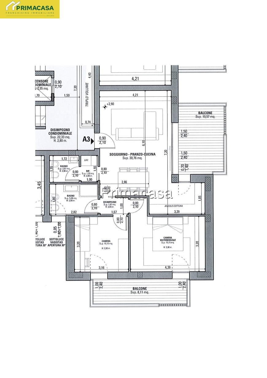
Appartamento al primo piano con ampia loggia , internamente, così composta:
- Zona giorno open space con cucina a vista e terrazzo
- 2 camere da letto con affaccio su terrazzi
- bagno
- ripostiglio
- garage (CON DETRAZIONE FISCALE DEL 50% SUL COSTO DI COSTRUZIONE)
- cantina
IMPIANTISTISTICA
- RISCALDAMENTO a pavimento
- Predisposizione SPLIT
- VMC (ventilazione meccanica controllata)
- 3 KW di fotovoltaico
Per la fornitura dei pavimenti, l’impresa indicherà primarie aziende sul territorio locale, in cui recarsi per visionare il materiale disponibile tra una vasta scelta di materiali.
Il capitolato, già ricco e di pregio, non toglie, comunque, la possibilità di SCEGLIERE LE FINITURE FINALI , per personalizzare la soluzione e incontrare i gusti di chi acquista.
Caratteristiche principali
Efficienza energetica
Stampa annuncio
- Scarica la scheda dell'immobile Scarica
Accessori
Indirizzo e mappa
viale asioli 2c - Correggio, Reggio Emilia
