San Martino Buon Albergo
5819 - San Martino B.A.
- € 250.000,00
- In vendita
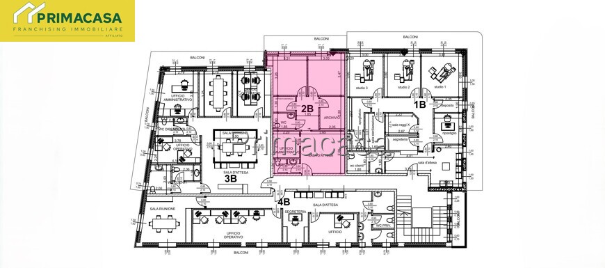
SPAZIO 9. Centro San Martino, in posizione di alto passaggio e visibilità, prossima realizzazione di un piccolo edificio direzionale con affaccio sulla strada statale con ampio parcheggio esterno. Al primo piano ufficio di circa 70 mq. composto da 5 stanze più servizi con possibilità di personalizzazione degli spazi e delle finiture. Fotovoltaico, impianto in pompa di calore, ventilazione meccanica per un ricambio ottimale dell'aria, impianto d'allarme. Consegna autunno 2026. 250.000,00
Video
Caratteristiche principali
Riferimento
5819
Contratto:
Vendita
Tipologia:
Ufficio
Superficie:
70 MQ2
Camere:
N.D.
Bagni:
2
Prezzo:
€ 250.000,00
Efficienza energetica
Classe energetica
A4
Indice di prestazione energetica:
10,00 kWh/m2
Stampa annuncio
- Scarica la scheda dell'immobile Scarica
Accessori
Aria condizionata
Antifurto
Garage
Riscaldamento
Caldaia
Arredamento
Carroponte
Rete fognaria
Mensa
Spogliatoio
Accessi carrai
Indirizzo e mappa
Via Amerigo Vespucci 9 - San Martino Buon Albergo, Verona
Ogni punto vendita è giuridicamente ed amministrativamente autonomo. La presente offerta non costituisce elemento contrattuale. Offerta valida salvo il venduto.
